El jumbo hidráulico para perforación HT221 está diseñado específicamente para la excavación de túneles en espacios subterráneos estrechos, como minas de metal y otros entornos confinados. Con un área de cobertura de hasta 33 m², este jumbo de perforación inteligente ofrece un rendimiento de alta eficiencia gracias a su avanzado sistema de perforación de roca totalmente hidráulico, equipado con un mecanismo antiatasco para una operación más rápida y estable.
Diseñado con controles fáciles de usar y un alto grado de automatización, este jumbo de perforación hidráulica minimiza la necesidad de habilidades del operador, a la vez que ofrece una funcionalidad inteligente para facilitar el flujo de trabajo. Dispone de una amplia gama de opciones de configuración para adaptarse a las necesidades específicas de su proyecto. Su estructura compacta y su ágil movilidad mejoran significativamente el entorno de trabajo y contribuyen a aumentar la calidad de la construcción y la productividad. Mejore su obra subterránea con una solución que mejora la eficiencia, simplifica el control y se adapta a sus necesidades de tunelaje.
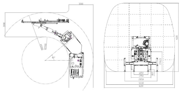
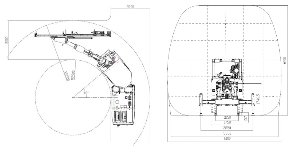
| Plataforma de perforación | Cobertura de perforación | 3000×3000—6600×6000mm | |||
| Radio de giro mínimo | Interior 2800mm Exterior 4900mm | ||||
| Dimensiones | 11510×1750×2208(2918)mm | ||||
| Gradeabilidad | 14° | ||||
| Distancia al suelo | 365mm | ||||
| Peso | 13500kg | ||||
| Taladro de roca | Modelo | RC2200 | YYG18U | YYG22U | HC95 LMA |
| Potencia de impacto | 21kW | 18kW | 22kW | 21kW | |
| Frecuencia de impacto | 55Hz | 57Hz | 53Hz | 55Hz | |
| Presión de impacto | 120-220bar | 180-200bar | 180-200bar | 165-200bar | |
| Sistema de rotación | Rotación independiente | ||||
| Longitud del taladro de roca | 931mm | 1007mm | 1007mm | 987mm | |
| Adaptador de vástago | T38, R38, T45 | T38 | T38 | T38, R38 | |
| Alimentación | Longitud total | 5262/5972mm | 5450/6040mm | 6040mm | 5972mm |
| Longitud del acero de perforación | 3700/4305mm | 3700/4305mm | 4305mm | 4305mm | |
| Profundidad del orificio de perforación | 3370/3970mm | 3370/3970mm | 3970mm | 3970mm | |
| Fuerza de avance | 13kN | 13kN | 13kN | 13kN | |
| Pluma | Compensación de alimentación | 1250mm | |||
| Agujero horizontal | Cobertura completa | ||||
| Ángulo de rotación de la carcasa guía | ±180° | ||||
| Ángulo de inclinación de alimentación | +90°/-5° | ||||
| Ángulo de inclinación de la pluma | +60°/-30° | ||||
| Ángulo de giro | ±35° | ||||
| Peso de la pluma | 2565kg | ||||
| Extensión telescópica de la pluma | 1450mm | ||||
| Sistema de aire y agua | Máximo desplazamiento de la bomba (12 bar) | 4m³/h | |||
| Capacidad del tanque de aire | 56L | ||||
| Desplazamiento de aire | 1m³/h | ||||
| Potencia de la instalación | 87.5kW | ||||
| Potencia del motor principal | 75kW | ||||
| Voltaje | 380V (personalizable) | ||||
| Sistema hidráulico | Capacidad del tanque de aceite | 185L | |||
| Filtración | 10μm | ||||
| Chasis | Marca/potencia del motor | Motor Cummins (III), 74kW Motor Cummins (IV), 81kW Motor Cummins (V), 90kW | |||
| Capacidad del tanque de diésel | 60L | ||||
Huatai es una empresa china especializada en el diseño y la producción en serie de equipos de perforación de rocas. Desde nuestra creación en el año 2000, en Huatai nos hemos dedicado a la fabricación de productos de vanguardia y a proporcionar servicios integrales a varias empresas en los sectores de la minería, metalurgia e ingeniería de cimientos.
Huatai lleva 20 años innovando y desarrollándose en el sector de la minería subterránea y la perforación de rocas, superándose constantemente y llenando una serie de vacíos en el mercado chino. En la actualidad, nuestra gama de productos incluye más de 30 tipos de martillos mineros divididos en tres categorías principales, que son, equipos de minería subterránea, equipos de minería de carbón y máquinas para la perforación de pozos. A través de años de crecimiento y mejora continuos, hemos logrado ganar una buena reputación en la industria nacional de perforación de rocas, mejorando la seguridad, la eficiencia y la rentabilidad de los trabajos de minería subterránea y las operaciones de construcción de túneles.
La máquina de rehabilitación de minas de carbón WPZ-37/600 se ha fabricado especialmente para el mantenimiento de minas de carbón; ideal para eliminar la congestión en las minas. Se puede equipar con un martillo hidráulico para triturar rocas y bloques de carbón de manera eficiente.
Más +
El jumbo de perforación de pozos YSJZ es una máquina de perforación de rocas diseñada específicamente para la construcción de pozos en minas de mineral de hierro y metales no ferrosos. El equipo de perforación de pozos es una excelente opción para proyectos de minería y construcción subterránea en los que no se puede recurrir a otros métodos de perforación debido a limitaciones técnicas o económicas.
Más +
La perforadora de eje vertical de la serie SJZ es un equipo diseñado especialmente para la perforación de barrenos para la construcción de pozos verticales. Es adecuada para perforar pozos de varios diámetros y se caracteriza por su funcionamiento flexible, su posicionamiento preciso, su seguridad y su fiabilidad.
Más +
El jumbo hidráulico de perforación de pozos GYSJZ es una máquina de perforación especializada y de alto rendimiento desarrollada para satisfacer las demandas de la excavación de pozos verticales profundos y de roca dura. La maquinaria de perforación está impulsada por un robusto motor de 132kW y equipada con tres derivadores hidráulicos de alta resistencia, lo que le permite manejar diámetros de perforación de 4 a 6 metros.
Más +