Nuestro jumbo hidráulico para perforación HT72 está diseñado para la perforación de alto rendimiento de pozos medianos a profundos, y es particularmente eficaz en operaciones de pozos en abanico y en grupo. Este jumbo destaca en túneles de sección transversal pequeña, ofreciendo una maniobrabilidad excepcional incluso en entornos subterráneos estrechos.
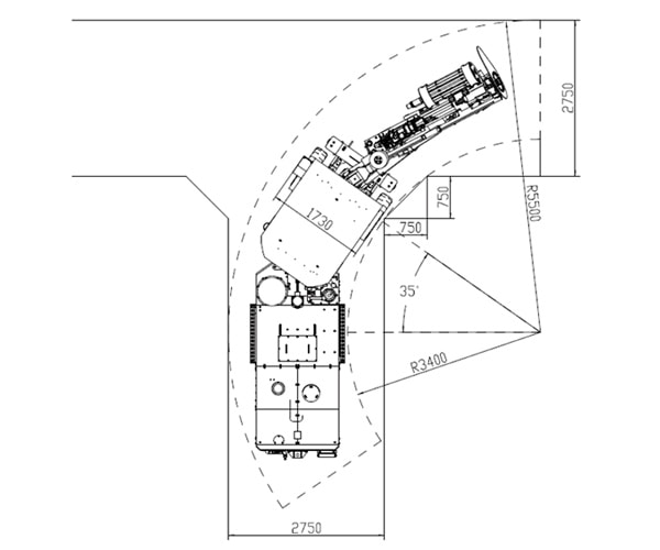
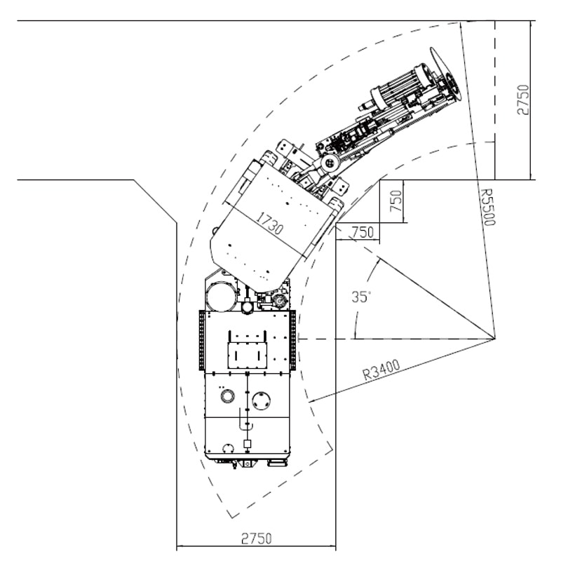
Equipado con un brazo articulado versátil que integra movimiento de giro y traslación, el jumbo hidráulico para perforación alcanza una cobertura horizontal y vertical de 180°. Esto le permite perforar áreas extensas desde una sola posición, ideal para la perforación compleja de pozos de voladura multiángulo.
Diseñado pensando en la seguridad del operador, el jumbo hidráulico de perforación cuenta con una cubierta reforzada que protege contra la caída de rocas, brindando una protección integral en el sitio. Garantiza la seguridad de su equipo y mantiene la máxima eficiencia en operaciones mineras exigentes. Transforme su forma de perforar con una solución que amplía su alcance, protege a su equipo y mantiene su operación en movimiento con precisión.
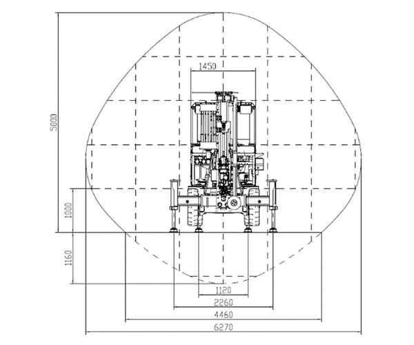
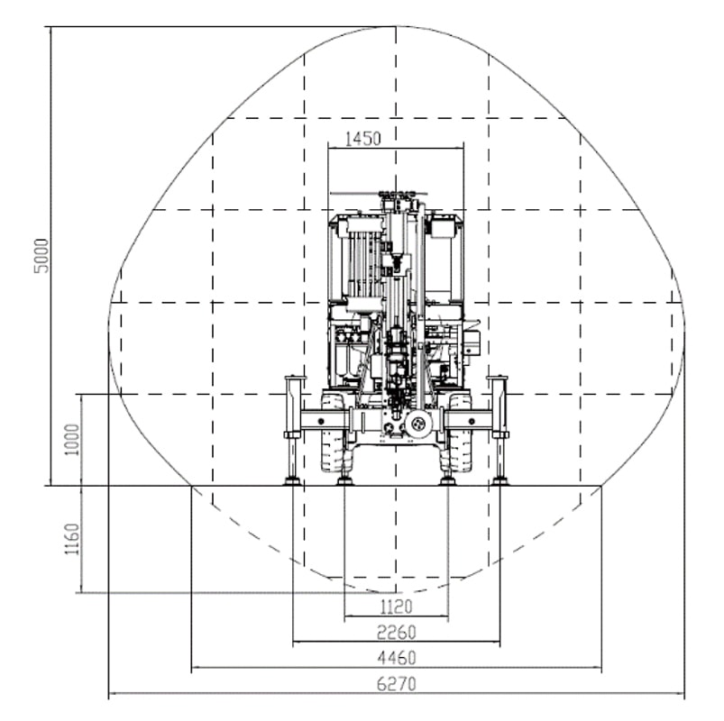
Detalles| Plataforma de perforación | Cobertura de perforación | 4000×4000mm—6100×6100mm | |
| Dimensiones | 8700×1750×2140(2850)mm | ||
| Distancia al suelo | 320mm | ||
| Radio de giro mínimo | Interior 3400mm Exterior 5500mm | ||
| Gradeabilidad | 14° | ||
| Peso | 15000kg | ||
| Taladro de roca | Modelo | YYG22U | HC95 |
| Potencia de impacto | 22kW | 24kW | |
| Frecuencia de impacto | 55Hz | 57Hz | |
| Presión de impacto | 180-220bar | 200bar | |
| Sistema de rotación | Rotación independiente | Rotación independiente | |
| Velocidad de rotación | 0-220r/min | 0-236r/min | |
| Par de rotación máximo | 1000Nm | 764Nm | |
| Alimentación | Longitud total | 3000mm | |
| Longitud del acero de perforación | 915mm | ||
| Peso | 650kg | ||
| Fuerza de avance | 13kN | ||
| Capacidad de almacenamiento de varillas | 13/15 varillas | ||
| Max. profundidad del agujero | 35000mm | ||
| Pluma | Compensación de alimentación | 750mm | |
| Ángulo de rotación de la carcasa guía | ±180° | ||
| Ángulo de giro de la carcasa guía | ±180° | ||
| Ángulo de giro de la carcasa guía | Abajo de 5°, arriba de 95° | ||
| Ángulo de inclinación de la pluma | +50°/-30° | ||
| Ángulo de giro | ±35° | ||
| Extensión telescópica de la pluma | 1250mm | ||
| Sistema de aire | Modelo de compresor de aire | GCU11 | |
| Capacidad del tanque de aire | 25L | ||
| Desplazamiento de aire (8bar) | 1m³/min | ||
| Sistema eléctrico | Potencia de la instalación | 85.5kW | |
| Potencia del motor principal | 75kW | ||
| Voltaje | 380V (personalizable) | ||
| Sistema hidráulico | Capacidad del tanque de aceite | 180L | |
| Filtración | 10μm | ||
| Chasis | Motor | Motor diésel Yanmar | |
| Potencia de salida nominal (2200r/min) | 53.7kW | ||
| Par (1650r/min) | 308Nm | ||
| Capacidad del tanque de diésel | 55L | ||
| Ángulo de dirección | ±35° | ||
| Filtro de emisiones | DOC+DPF | ||
| Longitud del cable | 70m | ||
Huatai es una empresa china especializada en el diseño y la producción en serie de equipos de perforación de rocas. Desde nuestra creación en el año 2000, en Huatai nos hemos dedicado a la fabricación de productos de vanguardia y a proporcionar servicios integrales a varias empresas en los sectores de la minería, metalurgia e ingeniería de cimientos.
Huatai lleva 20 años innovando y desarrollándose en el sector de la minería subterránea y la perforación de rocas, superándose constantemente y llenando una serie de vacíos en el mercado chino. En la actualidad, nuestra gama de productos incluye más de 30 tipos de martillos mineros divididos en tres categorías principales, que son, equipos de minería subterránea, equipos de minería de carbón y máquinas para la perforación de pozos. A través de años de crecimiento y mejora continuos, hemos logrado ganar una buena reputación en la industria nacional de perforación de rocas, mejorando la seguridad, la eficiencia y la rentabilidad de los trabajos de minería subterránea y las operaciones de construcción de túneles.
El jumbo hidráulico de perforación de pozos GYSJZ es una máquina de perforación especializada y de alto rendimiento desarrollada para satisfacer las demandas de la excavación de pozos verticales profundos y de roca dura. La maquinaria de perforación está impulsada por un robusto motor de 132kW y equipada con tres derivadores hidráulicos de alta resistencia, lo que le permite manejar diámetros de perforación de 4 a 6 metros.
Más +
El jumbo de perforación de pozos YSJZ es una máquina de perforación de rocas diseñada específicamente para la construcción de pozos en minas de mineral de hierro y metales no ferrosos. El equipo de perforación de pozos es una excelente opción para proyectos de minería y construcción subterránea en los que no se puede recurrir a otros métodos de perforación debido a limitaciones técnicas o económicas.
Más +
La perforadora de eje vertical de la serie SJZ es un equipo diseñado especialmente para la perforación de barrenos para la construcción de pozos verticales. Es adecuada para perforar pozos de varios diámetros y se caracteriza por su funcionamiento flexible, su posicionamiento preciso, su seguridad y su fiabilidad.
Más +
Diseñada específicamente para formaciones rocosas de dureza media, el drifter hidráulico o martillo de perforación hidráulico RC600 ofrece una perforación potente y precisa en una amplia gama de aplicaciones exigentes.
Más +