Nuestro jumbo hidráulico para perforación cuenta con una estructura compacta, pequeñas dimensiones externas, eficiencia energética, bajo nivel de ruido, multifuncionalidad y alta eficiencia, lo que permite operaciones mecanizadas en la excavación de túneles en roca y mejora significativamente la velocidad de excavación.
Ideal para la excavación de túneles en diversos pasajes subterráneos y alcantarillas, como en minas de metal y proyectos hidroeléctricos, este equipo cuenta con un sistema de perforación totalmente hidráulico y una función antiatasco para las barras de perforación.
Toda la serie de jumbos de perforación ofrece excelente maniobrabilidad, un radio de giro reducido y una capacidad de ascenso de 14°, lo que garantiza la eficiencia y la calidad de la construcción.
| Modelo | HT81 | |||
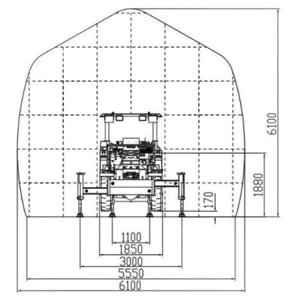
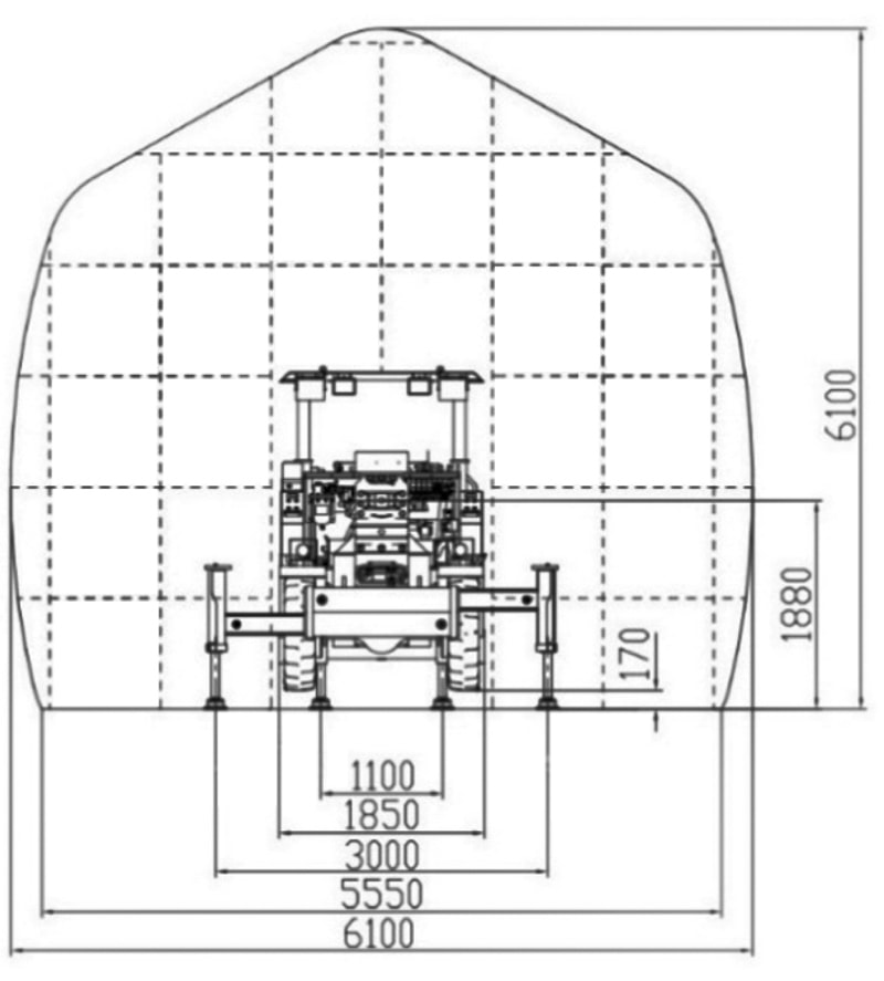
| Sección transversal aplicable | 4000x4000——6100x6100mm | |||
| Dimensiones generales (L×An×Al) | 12000x1850x2280(2880)mm | |||
| Distancia al suelo | 300mm | |||
| Peso total | 13500kg | |||
| Radio de giro mínimo | Interior: 3500 mm / Exterior: 5480 mm | |||
| Gradeabilidad | 14° | |||
| Velocidad | ≤15km/h | |||
| Tanque de aceite hidráulico | 120L | |||
| Drifter / Martillo de perforación | ||||
| Modelo | RC2200 | YYG18U | YYG22U | HC95LMa |
| Potencia | 21kW | 18kW | 22kW | 21kW |
| Frecuencia | 55Hz | 57Hz | 53Hz | 58Hz |
| Presión | 120-220bar | 130-200bar | 180-200bar | 180-200bar |
| Sistema de giro | Independente | Independente | Independente | Independente |
| Velocidad de giro | 0-285r/min | 0-220r/min | 0-220r/min | 0-303r/min |
| Máx. par | 720N.m | 1050N.m | 1050N.m | 764N.m |
| Alimentador | ||||
| Longitud total | 5262/5972mm | 5262/5972mm | 5972mm | 5972mm |
| Longitud de la varilla de perforación | 3700/4305mm | 3700/4305mm | 4305mm | 4305mm |
| Profundidad del agujero | 3370/3970mm | 3370/3970mm | 3970mm | 3970mm |
| Peso | 630/660kg | 610/640kg | 640kg | 640kg |
| Fuerza de avance | 13kN | 13kN | 13kN | 13kN |
| Pluma de perforación | ||||
| Extensión de la pluma | 1250mm | |||
| Cobertura horizontal de Agujero | Cobertura completa | |||
| Rotación de la pluma | ±180° | |||
| Pluma (ángulo de elevación/inclinación) | +60°/-30° | |||
| Ángulo de giro de la pluma | ±35° | |||
| Peso de la pluma | 2015kg | |||
| Sistema de agua y aire comprimido | ||||
| Caudal máximo de la bomba (12 bar) | 4m³/h | |||
| Desplazamiento de aire del compresor | 1m³/min | |||
| Sistema de accionamiento eléctrico | ||||
| Modelo | RC2000/YYG22U/HC95LMa | YYG18U | ||
| Potencia total | 85.5kW | 65.5kW | ||
| Potencia del motor principal | 75kW | 55kW | ||
| Voltaje nominal | 380V (personalizado) | |||
| Chasis | ||||
| Motor | Motor diésel Dongfanghong | |||
| Potencia nominal(2200r/min) | 73.6kW | |||
| Par (1650r/min) | 319.5N.m | |||
| Sistema hidráulico | Válvulas hidráulicas de control proporcional Función antibloqueo Sistema de frenos de seguridad | |||
Huatai es una empresa china especializada en el diseño y la producción en serie de equipos de perforación de rocas. Desde nuestra creación en el año 2000, en Huatai nos hemos dedicado a la fabricación de productos de vanguardia y a proporcionar servicios integrales a varias empresas en los sectores de la minería, metalurgia e ingeniería de cimientos.
Huatai lleva 20 años innovando y desarrollándose en el sector de la minería subterránea y la perforación de rocas, superándose constantemente y llenando una serie de vacíos en el mercado chino. En la actualidad, nuestra gama de productos incluye más de 30 tipos de martillos mineros divididos en tres categorías principales, que son, equipos de minería subterránea, equipos de minería de carbón y máquinas para la perforación de pozos. A través de años de crecimiento y mejora continuos, hemos logrado ganar una buena reputación en la industria nacional de perforación de rocas, mejorando la seguridad, la eficiencia y la rentabilidad de los trabajos de minería subterránea y las operaciones de construcción de túneles.
La máquina de rehabilitación de minas de carbón WPZ-37/600 se ha fabricado especialmente para el mantenimiento de minas de carbón; ideal para eliminar la congestión en las minas. Se puede equipar con un martillo hidráulico para triturar rocas y bloques de carbón de manera eficiente.
Más +
El jumbo de perforación de pozos YSJZ es una máquina de perforación de rocas diseñada específicamente para la construcción de pozos en minas de mineral de hierro y metales no ferrosos. El equipo de perforación de pozos es una excelente opción para proyectos de minería y construcción subterránea en los que no se puede recurrir a otros métodos de perforación debido a limitaciones técnicas o económicas.
Más +
La perforadora de eje vertical de la serie SJZ es un equipo diseñado especialmente para la perforación de barrenos para la construcción de pozos verticales. Es adecuada para perforar pozos de varios diámetros y se caracteriza por su funcionamiento flexible, su posicionamiento preciso, su seguridad y su fiabilidad.
Más +
El jumbo hidráulico de perforación de pozos GYSJZ es una máquina de perforación especializada y de alto rendimiento desarrollada para satisfacer las demandas de la excavación de pozos verticales profundos y de roca dura. La maquinaria de perforación está impulsada por un robusto motor de 132kW y equipada con tres derivadores hidráulicos de alta resistencia, lo que le permite manejar diámetros de perforación de 4 a 6 metros.
Más +