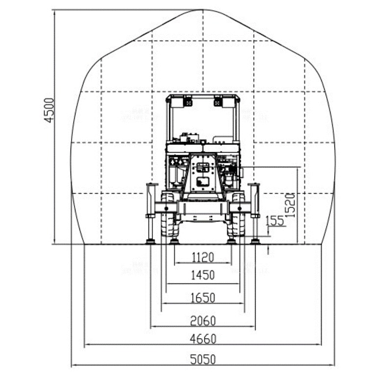
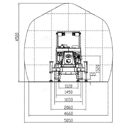
Nuestro jumbo hidráulico para perforación se utiliza ampliamente en minas subterráneas de metal de tamaño pequeño a mediano, proyectos hidroeléctricos, túneles de carreteras y ferrocarriles, y aplicaciones en la industria química. Con una excepcional adaptabilidad a rocas (admite durezas Protodyakonov de f=6-16 o superiores), esta versátil máquina opera eficientemente en túneles de hasta 3.3 metros de ancho.
Características principales:
| Modelo | HT82 | |
| Sección transversal aplicable | 3000x3000——5050x4500mm | |
| Dimensiones generales (L × An × Al) | 10600x1650x2085 (2795)mm | |
| Distancia al suelo | 320mm | |
| Peso total | 11500kg | |
| Radio de giro mínimo | Interior: 3450mm Exterior: 5450mm | |
| Gradeabilidad | 14° | |
| Velocidad | ≤7.2km/h | |
| Longitud del cable | 70m | |
| Opciones del drifter / martillo de perforación | ||
| Modelo | RC2200 | YYG18U |
| Potencia | 21kW | 18kW |
| Frecuencia | 55Hz | 57Hz |
| Presión | 120-220bar | 130-200bar |
| Sistema de giro | Independente | Independente |
| Velocidad de giro | 0-285r/min | 0-220r/min |
| Par | 720N.m | 1050N.m |
| Alimentador | ||
| Longitud total | 4820/5262mm | 4820/5262mm |
| Longitud de la varilla de perforación | 3090/3700mm | 3090/3700mm |
| Profundidad del agujero | 2770/3370mm | 2770/3370mm |
| Peso | 550/610kg | 530/590kg |
| Fuerza de avance | 13kN | 13kN |
| Pluma de perforación | ||
| Extensión de la pluma | 1250mm | |
| Cobertura horizontal de Agujero | Cobertura completa | |
| Rotación de la pluma | ±180° | |
| Pluma (ángulo de elevación/inclinación) | +60°/-30° | |
| Ángulo de giro de la pluma | ±35° | |
| Peso de la pluma | 1645kg | |
| Sistema de agua y aire comprimido | ||
| Caudal máximo de la bomba de agua | 4m³/h | |
| Desplazamiento de aire del compresor | 1m³/min | |
| Sistema eléctrico | ||
| Potencia total | 85.5kW | 65.5kW |
| Potencia del motor principal | 75kW | 55kW |
| Voltaje | 380V (personalizado) | |
| Chasis | ||
| Motor | Motor diésel Yanmar | |
| Potencia nominal (2200r/min) | 53.7kW | |
| Par (1650r/min) | 308N.m | |
| Sistema hidráulico | ||
| Sistema de accionamiento hidrostático de circuito cerrado Sistema de control hidráulico directo Función antisaltos | ||
Huatai es una empresa china especializada en el diseño y la producción en serie de equipos de perforación de rocas. Desde nuestra creación en el año 2000, en Huatai nos hemos dedicado a la fabricación de productos de vanguardia y a proporcionar servicios integrales a varias empresas en los sectores de la minería, metalurgia e ingeniería de cimientos.
Huatai lleva 20 años innovando y desarrollándose en el sector de la minería subterránea y la perforación de rocas, superándose constantemente y llenando una serie de vacíos en el mercado chino. En la actualidad, nuestra gama de productos incluye más de 30 tipos de martillos mineros divididos en tres categorías principales, que son, equipos de minería subterránea, equipos de minería de carbón y máquinas para la perforación de pozos. A través de años de crecimiento y mejora continuos, hemos logrado ganar una buena reputación en la industria nacional de perforación de rocas, mejorando la seguridad, la eficiencia y la rentabilidad de los trabajos de minería subterránea y las operaciones de construcción de túneles.
La máquina de rehabilitación de minas de carbón WPZ-37/600 se ha fabricado especialmente para el mantenimiento de minas de carbón; ideal para eliminar la congestión en las minas. Se puede equipar con un martillo hidráulico para triturar rocas y bloques de carbón de manera eficiente.
Más +
El jumbo de perforación de pozos YSJZ es una máquina de perforación de rocas diseñada específicamente para la construcción de pozos en minas de mineral de hierro y metales no ferrosos. El equipo de perforación de pozos es una excelente opción para proyectos de minería y construcción subterránea en los que no se puede recurrir a otros métodos de perforación debido a limitaciones técnicas o económicas.
Más +
La perforadora de eje vertical de la serie SJZ es un equipo diseñado especialmente para la perforación de barrenos para la construcción de pozos verticales. Es adecuada para perforar pozos de varios diámetros y se caracteriza por su funcionamiento flexible, su posicionamiento preciso, su seguridad y su fiabilidad.
Más +
El jumbo hidráulico de perforación de pozos GYSJZ es una máquina de perforación especializada y de alto rendimiento desarrollada para satisfacer las demandas de la excavación de pozos verticales profundos y de roca dura. La maquinaria de perforación está impulsada por un robusto motor de 132kW y equipada con tres derivadores hidráulicos de alta resistencia, lo que le permite manejar diámetros de perforación de 4 a 6 metros.
Más +