Zhangjiakou Xuanhua Huatai Mining & Metallurgical Machinery Co., Ltd.
  • 
    1. Español
  • Inicio
  • Productos+
  • Sobre Huatai+
    • Nuestra Empresa
    • Tour Virtual
    • Certificados
    • Servicios
  • Videos
  • Contáctenos
  • Inicio
  • Revisión
  • Jumbo Empernador Hidráulico, CMM2-33
Equipos para Minería de Carbón

Jumbo Empernador Hidráulico, CMM2-33 (para Minas de Carbón)

Jumbo Empernador Hidráulico, CMM2-33
Jumbo Empernador Hidráulico, CMM2-33 Jumbo Empernador Hidráulico, CMM2-33 Jumbo Empernador Hidráulico, CMM2-33 Jumbo Empernador Hidráulico, CMM2-33 Jumbo Empernador Hidráulico, CMM2-33

El jumbo empernador hidráulico CMM2-33 ha sido diseñado para el refuerzo de rocas en minas de carbón subterráneas. Es ideal para el anclaje de rocas con una resistencia de menos de f-8. Junto con un jumbo de perforación, este jumbo empernador se utiliza para perforar agujeros para colocar pernos de varilla y pernos de cable. Además, la colocación de soportes temporales en el techo proporciona una protección adecuada a los operarios. Este equipo de minería se caracteriza por su alta eficiencia de trabajo, su fácil operación y mantenimiento, así como por su funcionamiento estable.

Especificaciones Técnicas
General
Ancho 1200 mm
Altura 2400 mm
Longitud total 5580 mm
Distancia al suelo 250 mm
Velocidad de desplazamiento 2.4 km/h
Peso 8750 kg
Perforadora de rocas
Tipo de motor 2K-130
Par nominal 315 N.m
Velocidad nominal 430 r/min
Diámetro del orificio ⌀ 27, 32 mm
Tipo de varilla B19
Consumo de agua 10-17 L/min
Sistema eléctrico
Potencia instalada 45 kW
Tensión 660/1140 V
Frecuencia 50 Hz
Diá. del carrete de cable 870 mm
Protección de secuencia de fase
Protección contra baja tensión
Protección contra sobrecarga
Protección contra corto circuito
Protección contra desbalance trifásico
Protección del temperatura de aceite
Protección de nivel de líquido
Protección contra fugas de gas
Protección de concentración de gas
Viga de avance
Longitud total 1808 mm
Longitud de varilla 1500/1200 mm
Profundidad de agujero 18000 mm
Peso 376 kg
Fuerza de avance 13 kN
Velocidad de avance ≥1000 mm/min
Velocidad de retorno sin carga ≥4000 mm/min
Presión de trabajo ≤10 Mpa
Brazo
  • Ángulo de inclinación/elevación: 0-19°
  • Ángulo de oscilación del avance: 7-7°
  • Ángulo de rotación: 25-86°
  • Longitud retráctil: 1480 mm
  • Extensión del avance: 1170 mm
  • Ángulo de giro del avance: ±90°
  • Peso: 340 kg
Sistema de agua
  • Desplazamiento máximo de la bomba 1 m³/h
  • Presión de trabajo para la descarga de escoria 6-12 bar
Sistema hidráulico
  • Desplazamiento de la bomba principal 130 cc
  • Desplazamiento de la bomba asistida 16 cc
  • Capacidad máxima del depósito de aceite: 130L
  • Eficiencia del filtro: 10 μm
Tren de rodaje/chasis
  • Par: 10500 N.m
  • Velocidad de desplazamiento: 2,4 km/h
  • Gradeabilidad: 14°
  • Ancho de vía: 300 mm
  • Luz de trabajo delantera: 2x9W
  • Luz de trabajo trasera: 1x9W
Cables
Tensión Tipo Sección transversal Diámetro Largo
1140 V MYP-0.66/1.14 3x25+1x16 mm2 40 mm 50 m
Dimensión exterior del jumbo empernador - Vista lateralDimensión exterior del jumbo empernador - Vista lateral
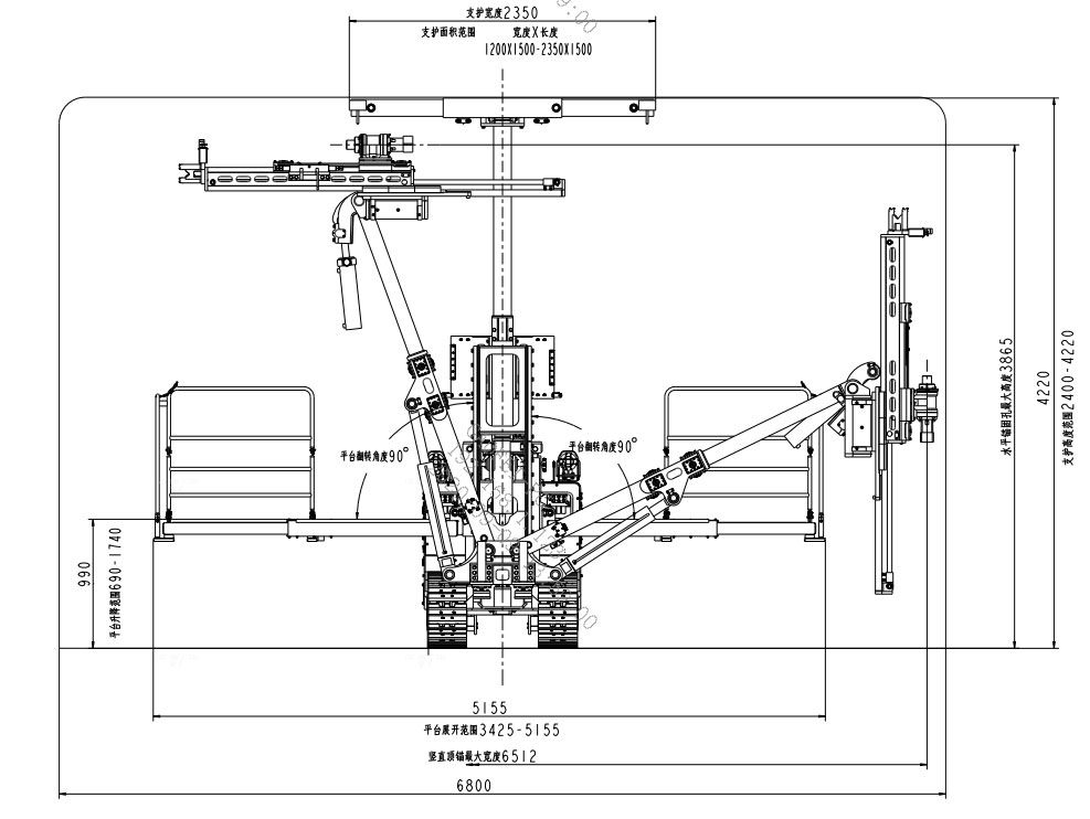
Cobertura de trabajoCobertura de trabajo
Tags
fabricante chino de equipos para minería perforadoras con fondo de martillo proveedor de maquinaria pesada para túneles perforadoras tuneladoras perforadoras para minería equipos para empernado de rocas equipos de perforación frontal fabricante chino de perforadoras jumbo jumbos de perforación minera
Nuestros Productos
  • Jumbo Hidráulico para Perforación
  • Jumbo de Perforación de Pozos
  • Drifter hidráulico / Martillo de perforación hidráulico
  • Equipos para Minería de Carbón
Contáctenos
No.10, Changping North Road, Xuanhua Economical Development Zone, Zhangjiakou, Hebei Province
huatai3237060@163.com
+86-313-3881299
+86-18713382069
Productos
  • Jumbo Hidráulico para Perforación
  • Equipos para Minería de Carbón
  • Jumbo de Perforación de Pozos
  • Drifter hidráulico / Martillo de perforación hidráulico
Sobre Huatai
  • Nuestra Empresa
  • Tour Virtual
  • Certificados
  • Servicios
  • Revisión
Supported by ETW International Inc. USA