Zhangjiakou Xuanhua Huatai Mining & Metallurgical Machinery Co., Ltd.
  • 
    1. Español
  • Inicio
  • Productos+
  • Sobre Huatai+
    • Nuestra Empresa
    • Tour Virtual
    • Certificados
    • Servicios
  • Videos
  • Contáctenos
  • Inicio
  • Revisión
  • Desatador de Rocas Subterráneo, XMPYT-60/325
Jumbo Hidráulico para Perforación

Desatador de Rocas Subterráneo, XMPYT-60/325 (Máquina para Desatar Rocas Sueltas)

Desatador de Rocas Subterráneo, XMPYT-60/325
Desatador de Rocas Subterráneo, XMPYT-60/325 Desatador de Rocas Subterráneo, XMPYT-60/325

El desatador de rocas subterráneo XMPYT-60/325 ha sido diseñado para trabajos de desatado de rocas sueltas en galerías, túneles y cuevas. Este equipo proporciona tanto una alta calidad de desatado de rocas como un alto nivel de seguridad, productividad y eficacia, acelerando en gran medida el trabajo y todo el proceso de excavación.

Este desatador de rocas minero tiene un brazo plegable con un martillo hidráulico accionado por un cilindro giratorio y puede utilizarse para desatar rocas en techos, paredes laterales y suelos en minas subterráneas o túneles. Además, el sistema hidráulico de este desatador está equipado con un control de detección de carga, que proporciona un bajo consumo de combustible, una dirección estable y un posicionamiento preciso.

Especificaciones Técnicas
General Dimensiones totales (Largo×Ancho×Alto) 7700×1650×2600 mm
Longitud retráctil (brazo) 6600 mm
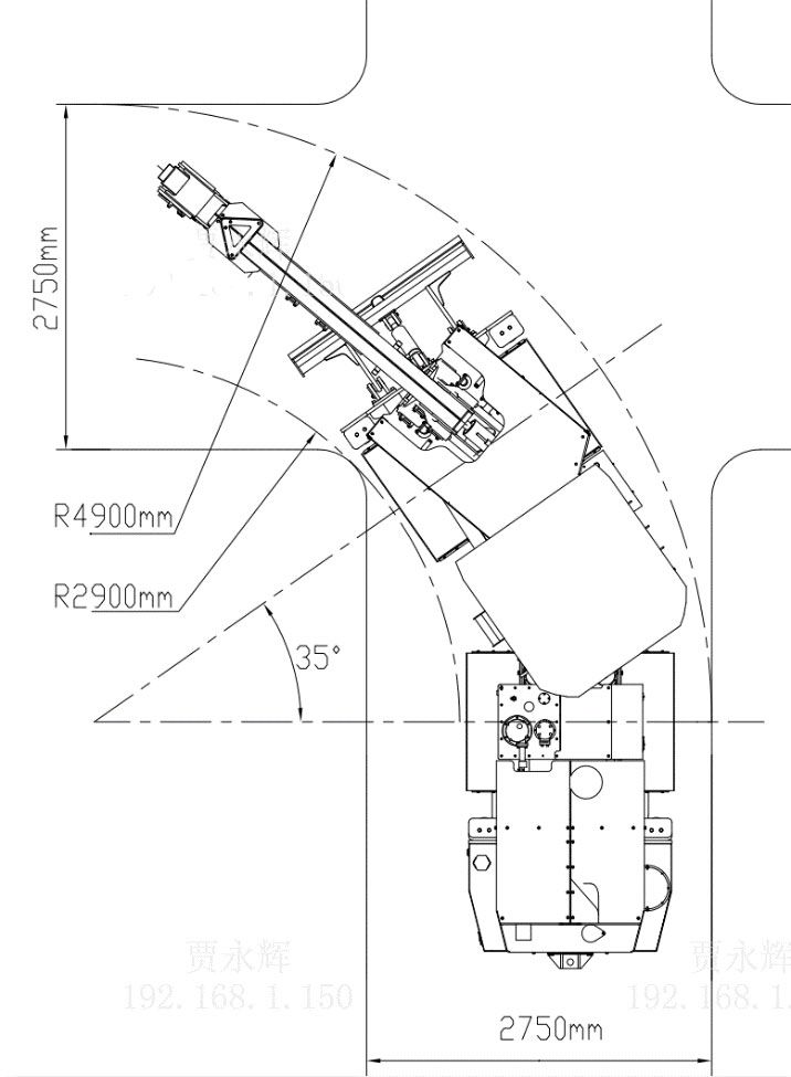
Altura máxima de desatado de rocas 6060 mm
Ángulo de giro del martillo hidráulico 50° - arriba, 65° - abajo; ±60° (izquierda/derecha)
Ángulo de giro del brazo ±30°
Gradabilidad 14
Radio de giro interior 2900 mm, exterior 4900 mm
Diámetro de la varilla ⌀ 53
Martillo hidráulico Índice de impacto 550-1100 bpm
Potencia nominal 60 kW
Características
  • Los desatadores de rocas subterráneos tienen un diseño modular para facilitar su mantenimiento.
  • Su estructura robusta y compacta permite un fácil manejo, con la capacidad de soportar condiciones severas.
  • El desatador de rocas, compuesto por un bastidor articulado y ruedas de goma, ofrece una operación de desatado de rocas con un radio de giro pequeño y una capacidad de cambio gradual que se adapta a una amplia gama de áreas de trabajo.
  • El desatador de rocas hidráulico cuenta con un freno de disco húmedo de ajuste automático por resorte y liberación hidráulica.
  • La cabina ergonómica del operador aprobada por FOPS y el sistema HVAC proporcionan una gran visibilidad y comodidad, manteniendo una excelente seguridad del personal. La cabina está diseñada con una protección contra las rocas en la parte delantera para evitar las lesiones del operador. La luz de trabajo de la placa del techo es ajustable manualmente, lo que proporciona una mejor iluminación en el pozo, mejorando la capacidad de visualización del minero y evitar posibles peligros en la mina.
  • Este equipo se caracteriza por su dirección estable, un posicionamiento preciso y unos circuitos hidráulicos optimizados.
  • El dispositivo de protección del nivel de fluido/temperatura del aceite garantiza que el equipo tenga una vida útil más prolongada.
  • Los principales componentes hidráulicos de este desatador de rocas provienen de marcas conocidas, lo que garantiza la calidad y el rendimiento de todo el equipo. El desatador de rocas mejora la seguridad gracias a un diseño especial. En caso de peligro, se activan simultáneamente varios mecanismos, como la elevación de la viga de empuje y de las patas de estabilización, la retracción del martillo hidráulico y el retroceso del vehículo. Gracias a ello, se puede garantizar una rápida evacuación y una gran protección para los trabajadores y el equipo.
  • Todos los desatadores de rocas son fáciles de manejar y proporcionan una procesos de desatado de rocas de alta calidad para un trabajo subterráneo seguro. Gracias a la excelencia de nuestros equipos y servicios, Huatai ha establecido relaciones con clientes de la industria de la minería y la construcción de túneles en todo el mundo.
Cobertura de desatado de rocas
Cobertura de desatado de rocas
Cobertura de desatado de rocas
Cobertura de desatado de rocas
Tags
equipos para minería maquinaria pesada para túneles fabricante chino de perforadoras mineras equipos para empernado de rocas equipos de perforación frontal fabricante chino de perforadoras jumbo jumbos de perforación minera
Nuestros Productos
  • Jumbo Hidráulico para Perforación
  • Jumbo de Perforación de Pozos
  • Drifter hidráulico / Martillo de perforación hidráulico
  • Equipos para Minería de Carbón
Contáctenos
No.10, Changping North Road, Xuanhua Economical Development Zone, Zhangjiakou, Hebei Province
huatai3237060@163.com
+86-313-3881299
+86-18713382069
Productos
  • Jumbo Hidráulico para Perforación
  • Equipos para Minería de Carbón
  • Jumbo de Perforación de Pozos
  • Drifter hidráulico / Martillo de perforación hidráulico
Sobre Huatai
  • Nuestra Empresa
  • Tour Virtual
  • Certificados
  • Servicios
  • Revisión
Supported by ETW International Inc. USA